![]() ![]() ![]() |
Д 76
1 этажа |
![]() |
Брус естественной влажности
150х200 мм | 876000 руб 150х150 мм | 790000 руб |
Профилированный брус
145х195 мм | 938000 руб 145×145 мм | 850000 руб |
Фундамент
ленточный | свайный 300000 руб|96000 руб |
Кровля Металочерепица | Ондулин
по запросу | по запросу |
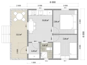
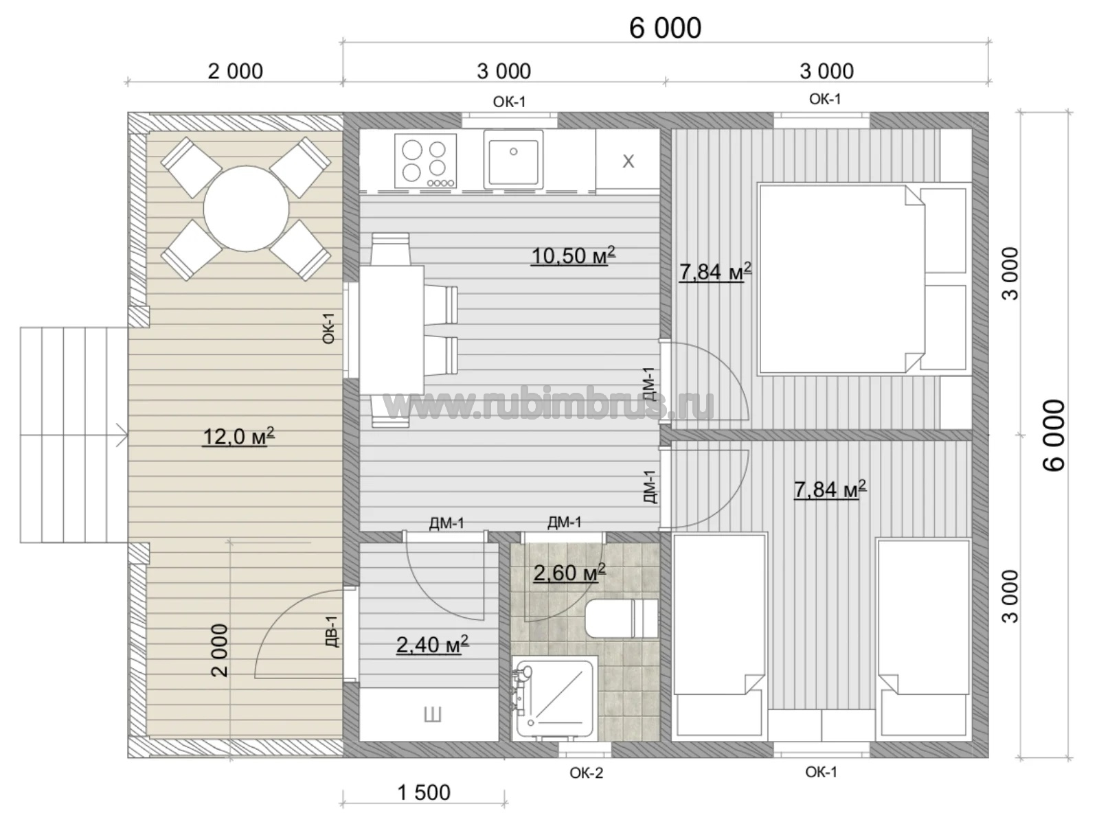
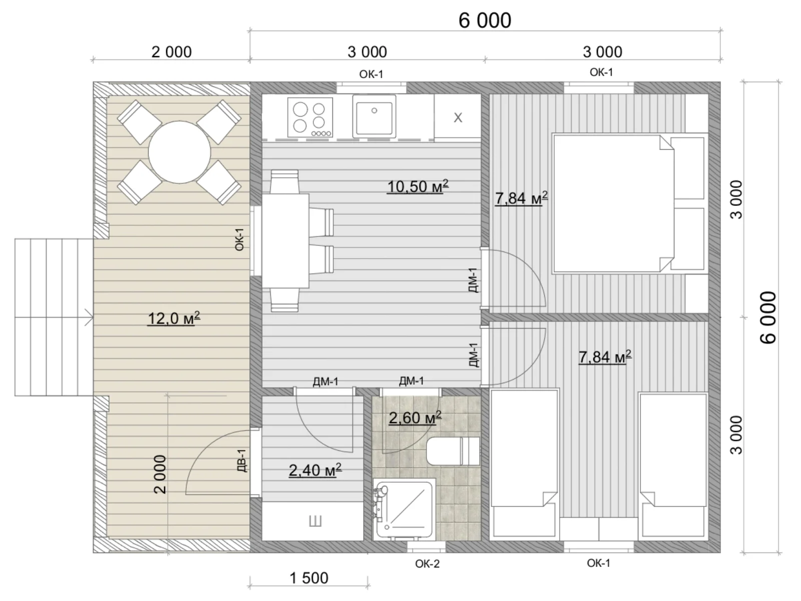
Базовая комплектация дома: (включая сборку и доставку)
-
- Стены дома из бруса — 150х150 или 200х150 мм (145*145 или 195х145 мм)
- Перегородки 1 этажа — брус 100х150 мм или (95*145 мм)
- Балки пола и потолка из бруса 100х150 мм с шагом 59 см
- Фронтоны крыши — доска обрезная 25х150 мм или (имитация бруса)
- Стропильная система — доска 50х150 мм
- Обрешетка крыши — доска 25х100 мм
- Выносы крыши по периметру дома 500 мм (карнизы, подлеты)
- Покрытие крыши рубероидом
- Высота 1-го этажа — 2,7 м(+/-5 см)
- Эскизный проект дома
- Расходные материалы: межвенцовый утеплитель, деревянные нагеля, гвозди, скобы, антисептик на нижний венец, рубероид на гидроизоляцию и кровлю, ГСМ для инструмента, и т.д
- Бесплатная доставка в пределах 600 км от нашей производственной базы
- Разгрузка и установка на участке Заказчика
- Запилы в ласточкин хвост (теплый угол)
- Венцы скрепляются между собой берёзовыми нагелями в шахматном порядке
- Отделка: в представленной комплектации «под усадку» не учтена стоимость отделочных работ. Все отделочные работы производятся только после усадки и рассчитываются индивидуально.
ДОПОЛНИТЕЛЬНЫЕ ОПЦИИ:
Обвязочный венец для свайных фундаментов брус 150х200 мм
Черновой пол на первом этаже
Все внутренние перегородки из бруса 150х150 мм
Балки 200х100 мм
Стропила 200х50 мм
Бытовка для проживания бригад










Брус естественной влажности
Профилированный брус
Фундамент
Кровля